"navigation"
股票代码:
430555
Language
中文简体
English
ภาษาไทย
日本語
介绍
韦德online(中国)
媒体
营销
韦德官方站网页版
00
HOME
首页
中文版
English
ภาษาไทย
日本語
01
ABOUT
介绍
公司概况
发展历程
企业文化
荣誉中心
02
PRODUCTS
韦德online(中国)
扎带及配线器材
高分子合金电缆桥架
非金属电能计量箱
电子样本
03
MEDIA
媒体
展会通告
媒体资讯
视频中心
04
MARKETING
营销
国内网络
全球布局
服务理念
资料下载
05
CONTACT
韦德官方站网页版
韦德官方站网页版方式
韦德online(中国) - 韦德online(中国)中心
韦德online(中国)中心
电子样本
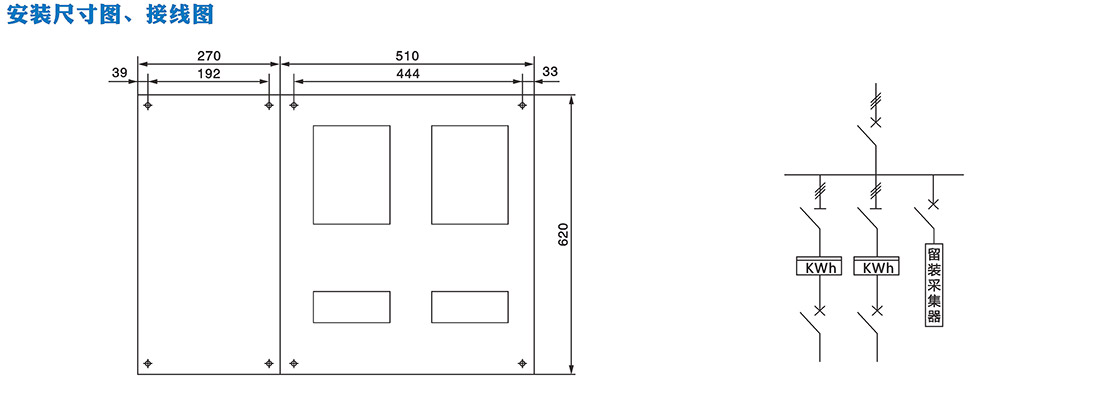
CHS-SXS201X SMC三相二表位电能计量箱
非金属电能计量箱
>
SMC新标准电能计量箱
标签:
韦德online(中国)询单
韦德online(中国)介绍
型号及配置
安装尺寸
收缩所有详情
电子样本
介绍
公司概况
发展历程
企业文化
荣誉中心
韦德online(中国)
扎带及配线器材
高分子合金电缆桥架
非金属电能计量箱
电子样本 (2019)
媒体
展会通告
媒体资讯
视频中心
营销
国内网络
全球布局
服务理念
资料下载
Focus on us
韦德官方站网页版
Copyright © 2019~2025 CHS
皖ICP备19013927号
技术支持:
亿新科技
乐清网络公司
星空体育·(StarSky Sports)官方网站
|
MK体育在线平台(中国)官网
|
开云官方在线入口
|
米兰体育·(中国区)官方网站
|
milan米兰体育网址
|
乐动在线登录-乐动(中国)
|
开云手机客户端登录入口中国有限公司
|
安博注册网(中国区)首页
|
乐动在线平台(中国)官网
|